Производственное здание Предложение

Дата добавления: 27-07-2010
Украина, Донецк
Тип недвижимости: Комм. недвижимость
Тип: производственное помещение
Раздел: Продам
Площадь, м2:
3369,2
Телефон: Нет
Интернет: Нет
Парковка: Да
Отдельный вход : Да
Дополнительная информация:
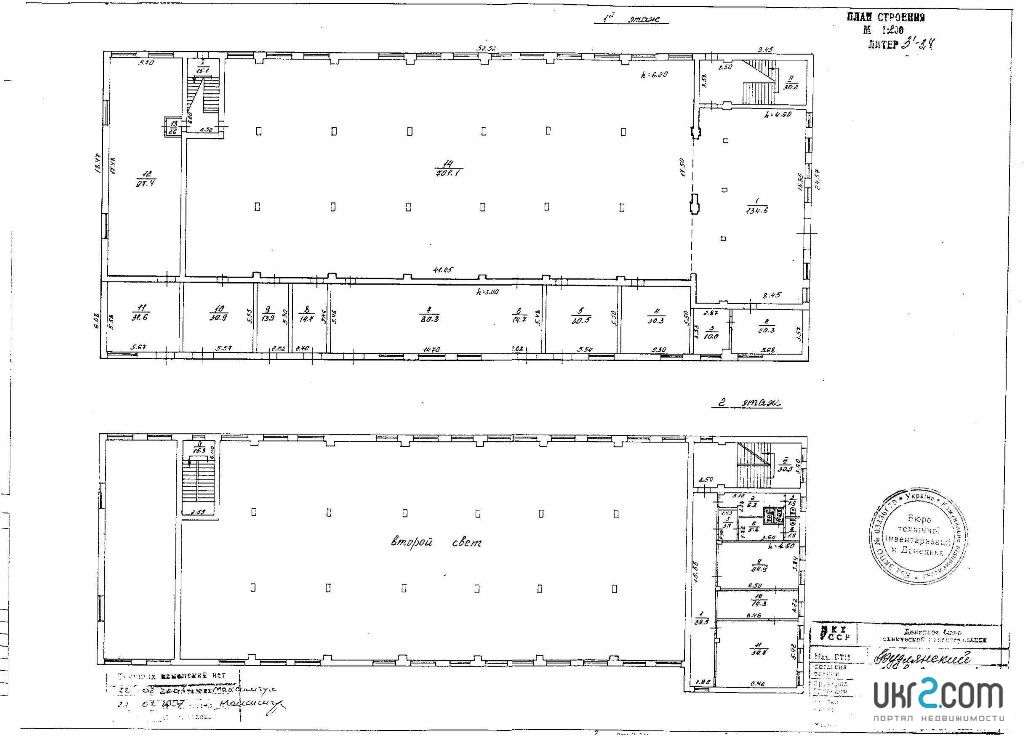
Срочно продается 3-эт. производственне здание в Куйбышевский р-не Донецка (Азотный).
Площадь - 3369,2 кв.м. (h=6,20 м)
технологический межэтажный проем, подъемние 2,5 т.
Преимущества:
возможность размещения производства, склада и офиса на одной территории;
наличие больших свободных электрических мощностей и всех необходимых коммуникаций.
Цена продажи: 60$/кв.м.
НИКАКИХ КОМИССИОННЫХ
Фото здесь http://www.dbr.com.ua/bdo.php?obj=29

Цена: 200,000 $
Контактное лицо:
Пефтиева Светлана

Телефон:
+38(063)333-02-73

Мобильный телефон:

Дополнительные фотографии объекта